Aktuálne ponuky realitnej kancelárie RealVEA.sk - Realitné služby inak

3 izbový byt v novostavbe (BYT 3C)

  • Ukončený predaj
Poprad - Centrum, Poprad, Prešovský kraj
Iba v našej RK Ukončený predaj Novostavba
Poprad - Centrum, Poprad, Prešovský kraj
  • Ukončený predaj

Rýchly prehľad

ID ponuky: 1202203
  • 3 izbový byt
  • Typ nehnuteľnosti
  • 3
  • Izby
  • 2
  • Spálne
  • 1
  • Kúpeľňa
  • 106,33

Popis ponuky

Ponúkame na predaj 3 izbový byt v tehlovej novostavbe, ktorá sa nachádza v centre podtatranského mesta Poprad. Byt sa nachádza na 3. poschodí.

Priestranný 3 izbový byt disponuje obývacou izbou spojenou s kuchyňou, dvomi samostatnými izbami (v každej izbe je šatník), kúpeľňou, samostatným WC, chodbou a predsieňou. Z obývačky je výstup na atypickú terasu. K bytu prislúcha komora, ktorá je na danom poschodí.

Úžitková plocha je 106,33 m2 (plocha bytu 99,51 m2 + komora 6,82 m2)

Tento byt sa predáva ako holobyt s podlahovým kúrením, kotol má každý byt sám a je umiestnený v komore. Plastové okná s izolačným trojsklom, bezpečnostné protipožiarne vstupné dvere. Na pochôdznej časti terasy je položená dlažba.

Parkovanie je zabezpečené formou vonkajšieho parkovacieho miesta, ktoré je v cene bytu. Cena bytu je uvedená s DPH.

Lokalita: centrum mesta Poprad, výborná občianska vybavenosť, potraviny, reštaurácie, služby, nemocnica – to všetko na pár krokov od bytu.

 

V ponuke máme aj BYT 3D,   BYT 3E,   BYT 4G,   BYT 4H,   BYT 4I

pôdorysy sú pod fotogalériou.

 


V kúpnej cene je zahrnutá provízia realitnej kancelárie a kompletný právny servis zabezpečovaný advokátskou kanceláriou.
Vlastník nehnuteľnosti si vyhradzuje právo výberu s kým a za akých dohodnutých podmienok uzavrie kúpno-predajnú zmluvu. V prípade viacerých záujemcov o danú nehnuteľnosť sa bude postupovať podľa Všeobecných podmienok licitácie kúpnej ceny, ktoré sú uvedené na: https://www.nasenehnutelnosti.sk/licitacia/.

Detailné informácie

Naposledy aktualizované 17 marca, 2024 v 1:43 am
  • ID ponuky: 1202203
  • Cena: Ukončený predaj
  • Úžitková plocha: 106,33 m²
  • Spálne: 2
  • Izby: 3
  • Kúpeľňa: 1
  • Typ nehnuteľnosti: 3 izbový byt
  • Stav ponuky: Ukončený predaj

Doplnkové informácie

  • Kuchyňa s obývačkou: 37,59 m2
  • Izba so šatníkom: 21,45 m2
  • Kúpeľňa: 4,93 m2
  • Samostatné WC: áno
  • Terasa: áno
  • Výťah: áno
  • Vonkajšie parkovacie miesto: v cene bytu

Lokalita ponuky

Otvoriť na Google mape
  • Adresa Francisciho
  • Mesto/Obec Poprad
  • Okres Poprad
  • PSČ 05801
  • Štvrť/Sídlisko Poprad - Centrum
  • Kraj Prešovský kraj

Aktuálny stav & Vybavenie

Súvisiace ponuky

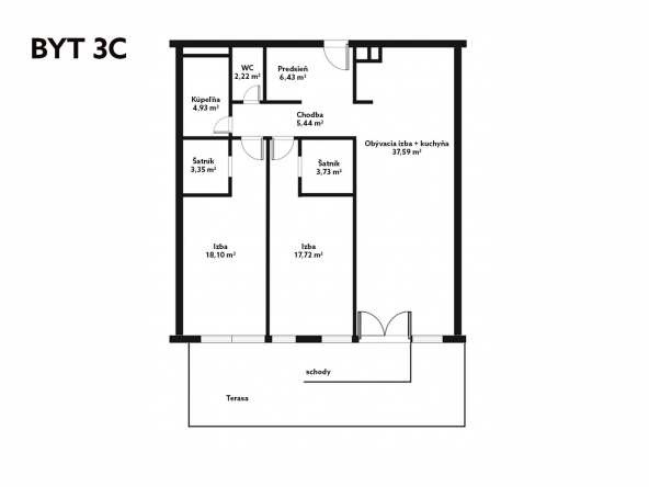
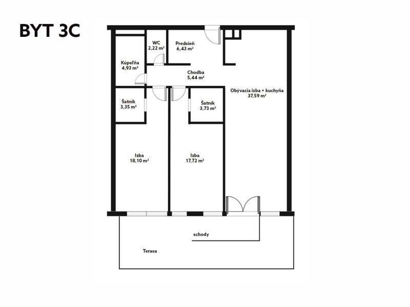
Pôdorysy

image

Popis ponuky:
úžitková plocha 106,33 m2 (plocha bytu 99,51 m2 + komora 6,82 m2) + terasa + parkovacie miesto

image

Popis ponuky:
úžitková plocha 106,19 m2 (plocha bytu 99,51 m2 + komora 6,68 m2) + terasa + parkovacie miesto

image

Popis ponuky:
úžitková plocha 108,43 m2 (plocha bytu 101,75 m2 + komora 6,68 m2) + balkón + parkovacie miesto

image

Popis ponuky:
úžitková plocha 96,64 m2 (plocha bytu 89,96 m2 + komora 6,82 m2) + terasa + parkovacie miesto

image

Popis ponuky:
úžitková plocha 96,78 m2 (plocha bytu 89,96 m2 + komora 6,82 m2) + terasa + parkovacie miesto

image

Popis ponuky:
úžitková plocha 93,76 m2 (plocha bytu 87,08 m2 + komora 6,68 m2) + terasa + parkovacie miesto

Kontakt na makléra

Pozrieť ďalšie ponuky
Mária Kasenčáková, RSc.

Máte dotaz na túto ponuku? Napíšte mi

Naplánovať obhliadku

Typ obhliadky
POZOR! Makléri neberú a ani nemôžu brať žiadne peniaze v hotovosti za rezerváciu či iné úkony v mene realitnej kancelárie. Naši makléri vyžadujú pri fyzických obhliadkach nehnuteľností z bezpečnostných dôvodov podpísať dokument o návšteve danej nehnuteľnosti. Fotografie, texty, virtuálne či video prehliadky vytvorené k tomuto inzerátu sú autorským dielom a majetkom realitnej kancelárie RealVEA.sk - realitné služby inak. Sledujte aj náš inšpiratívny blog o bývaní a realitách na www.obyvani.blog. Najvýhodnejšia hypotéka cez našu hypokalkulačku.

Nehnuteľnosti na porovnanie

Porovnať
Mária Kasenčáková, RSc.
  • Mária Kasenčáková, RSc.