Aktuálne ponuky realitnej kancelárie RealVEA.sk - Realitné služby inak

2 izbový byt na bývanie alebo ako investícia – Poprad / Starý Juh

  • Predané
Poprad – sídlisko Starý Juh, Poprad, Prešovský kraj
Iba v našej RK Predané Len sa nasťahovať
Poprad – sídlisko Starý Juh, Poprad, Prešovský kraj
  • Predané

Rýchly prehľad

ID ponuky: 912202601
  • 2 izbový byt
  • Typ nehnuteľnosti
  • 2
  • Izby
  • 1
  • Spálňa
  • 1
  • Kúpeľňa
  • 51,82

Popis ponuky

SonntagReality – úspešné príbehy o bývaní, člen realitnej kancelárie RealVEA vám vo výhradnom zastúpení prináša na predaj tento slnečný a prakticky riešený 2-izbový byt nachádzajúci sa vo vyhľadávanej lokalite Popradu, na Ulici Mládeže v časti Starý Juh. Táto nehnuteľnosť predstavuje ideálnu voľbu pre mladú rodinu hľadajúcu štartovacie bývanie, alebo ako strategickú investíciu s vysokým potenciálom zhodnotenia a garantovaným výnosom z následného prenájmu.

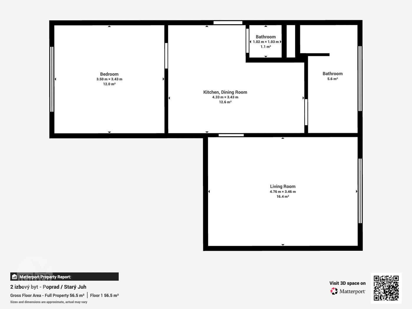
Dispozícia a parametre bytu

Byt sa nachádza na 5. poschodí a disponuje celkovou výmerou 51,82 m² (48,74 m² podlahová plocha bytu + pivnica v suteréne bytového domu).

Nehnuteľnosť prešla v roku 2020 rekonštrukciou, v rámci ktorej bolo vybudované nové murované jadro. Dispozičné riešenie je navrhnuté s dôrazom na maximálne využitie priestoru. Po vstupe do bytu vás privíta priestranná chodba, ktorá je šikovne prepojená s jedálenskou časťou a kuchyňou, čím vytvára srdce domova.

Z centrálnej časti sa vchádza do kúpeľne, ktorej veľkou prednosťou je plnohodnotné okno. To zabezpečuje nielen prirodzené denné svetlo, ale aj efektívne vetranie. Obe obytné izby sú nepriechodné, čo zaručuje dostatok súkromia. V prípade investičného zámeru je možné tieto izby využiť ako dve samostatné spálne pre nájomníkov.

Byt nedisponuje balkónom ani loggiou.

Lokalita a občianska vybavenosť

Sídlisko Starý Juh patrí medzi najobľúbenejšie časti Popradu vďaka svojej pokojnej atmosfére a výbornej dostupnosti. Priamo oproti bytovému domu sa nachádza športový areál a centrum voľného času, čo ocenia najmä rodičia s deťmi. V bezprostrednej blízkosti je k dispozícii materská a základná škola a kompletná občianska vybavenosť vrátane nákupných centier a služieb.

Okolie domu je bohaté na zeleň, ktorá ponúka priestor pre oddych a športové vyžitie. Unikátnym benefitom v zime je verejné klzisko nachádzajúce sa priamo pred bytovým domom. Dostupnosť do centra mesta je rýchla a bezproblémová, či už pešo, autom alebo mestskou hromadnou dopravou.

Tento byt kombinuje výhody pokojného bývania v zeleni s komfortom mestskej infraštruktúry. Ak hľadáte nehnuteľnosť, ktorá si drží svoju hodnotu a ponúka príjemné prostredie pre život, táto ponuka je určená práve vám.

V prípade záujmu o obhliadku alebo ďalšie informácie nás neváhajte kontaktovať.


V kúpnej cene je zahrnutá provízia realitnej kancelárie a kompletný právny servis zabezpečovaný advokátskou kanceláriou.
Vlastník nehnuteľnosti si vyhradzuje právo výberu s kým a za akých dohodnutých podmienok uzavrie kúpno-predajnú zmluvu. V prípade viacerých záujemcov o danú nehnuteľnosť sa bude postupovať podľa Všeobecných podmienok licitácie kúpnej ceny, ktoré sú uvedené na: https://www.nasenehnutelnosti.sk/licitacia/.


Detailné informácie

Naposledy aktualizované 20 februára, 2026 v 8:29 pm
  • ID ponuky: 912202601
  • Cena: Predané
  • Úžitková plocha: 51,82 m²
  • Spálňa: 1
  • Izby: 2
  • Kúpeľňa: 1
  • Typ nehnuteľnosti: 2 izbový byt
  • Stav ponuky: Predané

Lokalita ponuky

Otvoriť na Google mape
  • Adresa Mládeže 2352/22
  • Mesto/Obec Poprad
  • Okres Poprad
  • PSČ 05801
  • Štvrť/Sídlisko Poprad – sídlisko Starý Juh
  • Kraj Prešovský kraj

Aktuálny stav & Vybavenie

Kontakt na makléra

Pozrieť ďalšie ponuky

Máte dotaz na túto ponuku? Napíšte mi

Naplánovať obhliadku

Typ obhliadky
POZOR! Makléri neberú a ani nemôžu brať žiadne peniaze v hotovosti za rezerváciu či iné úkony v mene realitnej kancelárie. Naši makléri vyžadujú pri fyzických obhliadkach nehnuteľností z bezpečnostných dôvodov podpísať dokument o návšteve danej nehnuteľnosti. Fotografie, texty, virtuálne či video prehliadky vytvorené k tomuto inzerátu sú autorským dielom a majetkom realitnej kancelárie RealVEA.sk - realitné služby inak. Sledujte aj náš inšpiratívny blog o bývaní a realitách na www.obyvani.blog. Najvýhodnejšia hypotéka cez našu hypokalkulačku.

Nehnuteľnosti na porovnanie

Porovnať
Peter Turek
  • Peter Turek